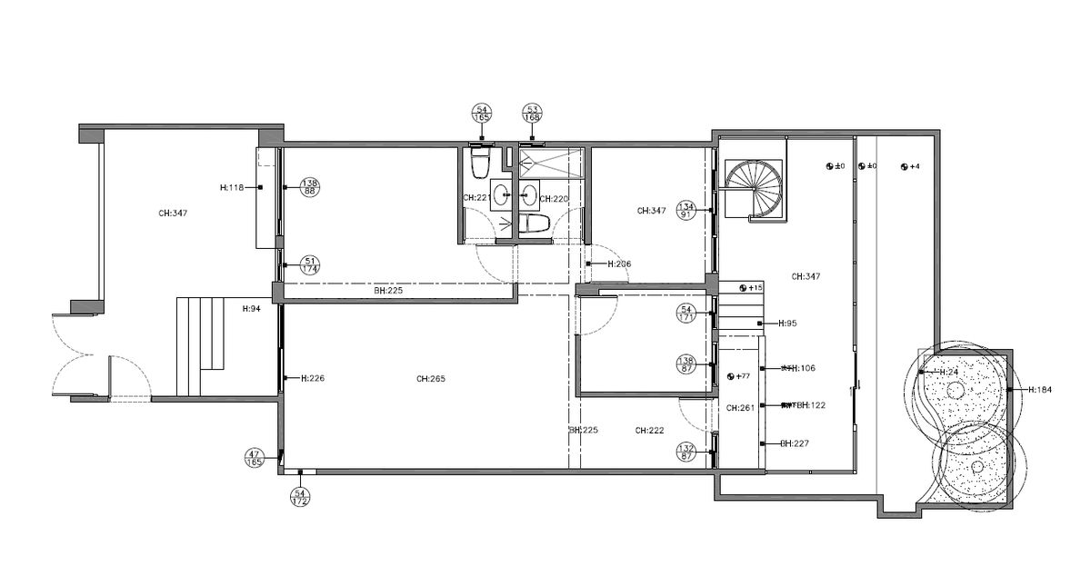
▲裝修前平面圖
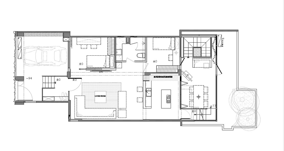
▲裝修後平面圖
這一間中古屋客廳的原始格局就存在不少問題,包含樑柱太多對視覺動線造成阻礙,以及無意義的夾層設計,既不實用也缺乏美觀,且天花的橫樑、管線,地面的直柱、磁磚因為規劃失當,雜亂的景觀讓人感覺非常煩躁。
設計團隊進駐本案後,首先由格局改造開始,將阻礙採光的牆壁打通;重新規劃格局配置,延續整體住家的輕工業風格,屋外則以沖孔鐵板代替木材,達成遮蔽與美化兩種雙贏;更使用拉門將兩間客房巧妙地收進電視牆後,藉以創造空間奇蹟。
其次更換過時的地面磁磚,改以時髦的水泥粉光;拆除無謂的夾層,換來令人驚豔的挑高;整理紛亂的管線,於是看見以木皮修飾包覆的完整平滑天花,再輔以嵌燈柔和溫馨的光源,讓客廳擁有自己獨一無二的美學個性。
▲裝修前的客廳
▲裝修後的客廳
▲裝修後的客廳
圖片/尚藝設計
即刻加入《"id SHOW"》Line@好友,快速掌握更多居家生活空間靈感及裝修知識等相關的精彩主題內容!
查看原始文章商品推薦
延伸閱讀
- 居家生活超有創意 原來陽台可以這樣用 !
- 美感與機能兼具, 12 種精彩牆面收納 X 展示實例
- 異材質的完美結合!12 款用鐵件打造創意的居家生活空間
- 天涼好個秋,輕鬆打造溫暖系生活居家!
- 打造好感生活,10種有FU 居家設計建議
- 居家生活中的一抹藍,藍色系的搭配應用實例
- 當個生活智慧王!7個主婦都愛的萬用居家生活小物
- 家の素顏美學.以合宜「尺度」刻畫專屬於你的空間風格
- 居家生活/休閒飲品-生活FALA纖維氣泡水,麝香葡萄風味爽口清新,無糖也好喝、生活加分水Dewy+運動補給飲料 順口好喝,迅速補充電解質&水份!日常生活/運動飲品/休閒飲品/氣泡飲/運動飲料/機能飲品/低糖低鈉/無防腐劑/無色素/健康/居家/飲料
- 找到好家具 不用找東西,IKEA收納四原則 打造居家大空間
小編推薦
- 蘋果官網無預警推出「AirPods Pro」!外表像小吹風機、地表最強降噪、入耳設計亮點整理
- 2019聖誕節慶祝活動|不可不知的聖誕節由來+全台精彩耶誕節看點不容錯過!
- 吃元宵囉!2019冬至將至 這些「冬至湯圓習俗」你知道多少?
- 《日本vs韓國》首爾 / 京都 / 東京,六大絕美夢幻『賞楓景點』大公開!今年好好把握別再錯過!
- 火鍋從北吃到南!精選全台灣人氣鍋物料理店,入手超值餐券讓你秋冬也能暖到心坎裡~
- 感恩節的意義和由來知多少?2019感恩節必吃食物活動大公開!
- 2019 全台最夯【跨年行程推薦】:觀景101餐館、路德威手工啤酒餐廳、萬豪INGE'S、高空露天酒吧等10家人氣餐廳,讓你跨年前盡情晚餐、跨年後徹夜狂歡!
- 限量破盤商品天天有!YAHOO奇摩雙11攻略讓你買到手軟
- 2019年感恩節折扣季開跑!全台黑色購物節「最高下殺5折」買到笑嗨嗨
- 2019南港美食炒飯王【Neverland Noodle Bar好朋友】翡翠蝦仁炒飯推薦
- 12星座男說不出口的內心話在這裡~終於不用自己瞎猜了!(上)
- 大腦構造本來就不一樣!男女生對「喜歡」的認知也大不同~另一半決定追你前都在想什麼?
- 五家台北韓系咖啡廳推薦不用飛到韓國了!來這邊也有質感佳、餐點好吃的咖啡廳~
- 《桃園平鎮特賣會》 丹尼美國服飾冬季特賣開始啦!Superdry極度乾燥外套一件5折(4件以上再打9折)。GAP大學T850元。美國服飾7折買愈多省愈多。品牌包單一特價| 年前快來搶一波 (影片)
- 這些行為真的無法忍受!12星座最受不了的『壞毛病』,快看看妳是不是中槍了~
- 2019【臺灣炒飯王-全民潮味對決之戰】北區創意潮流組名單
- 神準愛情心測!1秒測出~ 你 「內在」 還是「外貌」比較吸引?
- 網友瘋傳的超準心測:跟朋友去唱歌,你是屬於哪一種人呢?一秒測出你的「黏人指數」!
- 2019新店美食推薦全素【布佬廚房】安坑黑松露炒飯義式餐廳