居家空間設計類比於人的容貌體態,若是五官肢體的比例恰當、輪廓完美,那麼不論配上何種風格的妝容衣著,甚至是乾淨的素顏都可以很漂亮迷人。但相反的,倘若五官間的距離過寬或過窄,那麼即使是畫上繽紛眼妝的水汪汪大眼睛,也會顯得不自然和刻意。在各形各色風格的追求成為室內設計顯學的今日,人們在考慮室內裝修時,常忽略更為重要的「尺度」設計。「尺度」就像是人素顏時的五官比例,代表著人與環境之間的相互關係,太窄的過道、牆體或者是阻擋動線的櫃體,都會是破壞舒適空間尺度的敗筆。所以,如果你覺得生活空間總有哪裡「卡卡的」,或許就是你家的「尺度」出了問題,需要好好「設計」了!今天我們邀請到只設計‧部的何彥杰設計師,以九件案例帶領大家重新思考生活尺度與居家空間之間的關係,快跟小編一起學學「家的素顏美學」吧!
1.量體可以是決定空間尺度的關鍵:例如本案原格局沒有玄關空間,設計師在大門安排一道玄關鞋櫃,引導空間動線,同時也成為餐廳的主牆、廚房的冰箱櫃,為各區空間帶來新的界定。
BEFORE
AFTER
2.由生活型態建立最適切的居住尺度:本案屋主太太很喜歡料理,全家人也很注重一同用餐的時光,所以將廚房改為開放式空間,並適度讓餐廳後方的和室牆向後退縮,讓餐廚空間變成居家生活的重心。
BEFORE
AFTER
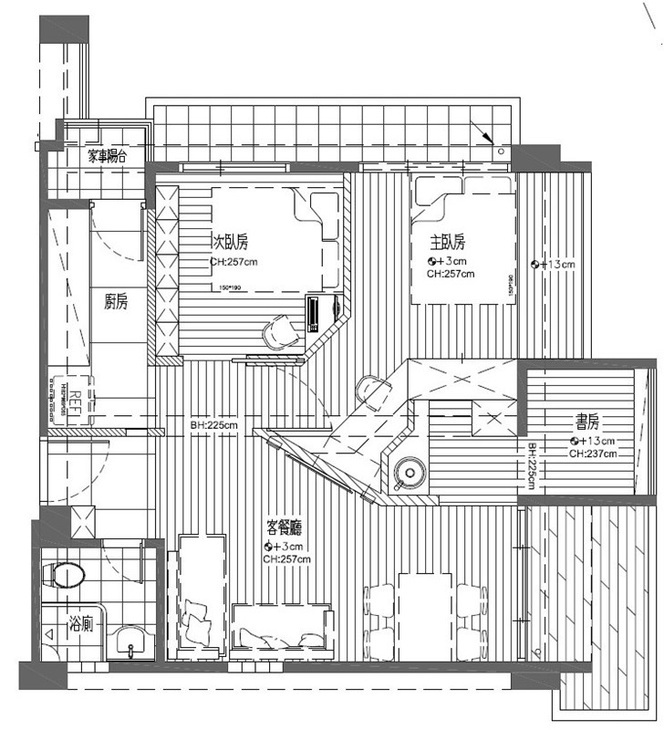
3.善用夾層優缺拓展變化空間尺度:夾層設計經常將樓梯集中於同一區域,本案反而是將樓梯打散為不同平面,其中一階甚至成為客廳地板、多功臥階,藉由高低差來創造空間層次感與收納機能。
1樓_BEFORE
1樓_AFTER
2樓_BEFORE
2樓_AFTER
4.動線轉向讓起居空間尺度得以擴張活化:原屋主要動線走道與各室的門形成多門狹道,也切割了客廳主牆完整性,不論就風水或動線而言都是缺點。重新調整主動線尺度、形式並配置空間順序,讓整體動線與視野具有更清晰的秩序感。
AFTER
5.調整公私領域的比例配置:將原主客衛浴與主客臥房的尺度重新調整,讓公共區域與私人臥房之間的定義更加清晰完整,同時也適度退讓衛浴牆面,給予餐廳廚房區域更寬闊的視野。
BEFORE
AFTER
6.複合式空間規劃滿足小坪數:坪數上的限制,可以透過複合式的機能規劃來拓展空間尺度。例如本案微調電視主牆角度,創出桌藏空間給主臥房的同時,也創造出能靈活使用的輕食吧檯區。
BEFORE
AFTER
7.由生活型態打造空間生態及尺度:為滿足長時間在家進行繪畫創作的屋主擁有更多元的使用型態,設計以架高區域創造空間層次及界定各空間尺度,讓原狹長單調的空間更具活潑的動態及整合多樣機能、再增加空間景深。
BEFORE
AFTER
8.捨棄低利用度的空間格局:考量屋主對於實際居住臥房數量及工作區的需求,設計將位在沙發後方的書房區域牆面移除,改為開放式的餐廳兼工作區,讓空間機能更貼近生活脈動。
BEFORE
AFTER
9.以「共生體」的概念找尋最合宜的居家尺度:居家空間的舒適感來自於人與環境之間的相互關係,因此進行設計時,最好能將人與各量體的尺度一併考慮進去,配合建築物本身的條件,融入使用者生活型態、情感喜好,追求居住的平衡與和諧的境界。
BEFORE
AFTER
10.與設計師討論構想時,請盡可能把對既有生活的輪廓、喜好,以及對未來夢想的生活方式都告訴設計師!小至興趣、嗜好、收藏、有無養寵物、信仰習慣、體感美好記憶……等。對居住成員需求越豐富的細節描繪與探索,越能造就舒適生活的空間美學喔!何彥杰設計師也貼心提醒大家,在設定追求某類風格之前,如果能在設計規劃階段多用一些心力探尋想像,了解自己實際且符合未來生活的需求,找出空間中最適合自己及生活的尺度,就能讓家擁有最適合自己的風格和美學喔!
查看原始文章
LINE購物 商品推薦|比價 賺點 一站就購!
延伸閱讀
小編推薦
- 韓妞都在偷偷做!睡前「7招輕鬆減肥」大公開~只需15分鐘,某天睡醒就瘦了!
- 「明明衣櫃都塞爆,還要買衣服?」9個女生的行為,是男生們永遠也搞不懂的迷思~
- 不可不知的真相!男人最常隱瞞女人的5個秘密~說晚安之後才是他睡醒的時候!
- 第一次約會時千萬不能犯的6個錯誤~做了男生肯定大扣分啊!女神形象都沒了~
- 面對「黑眼圈」也是沒辦法了?有50%人的睡姿也會導致黑眼圈,萬年眼圈要說再見了!
- 神準!十二星座「11月愛情運勢」(上集)~ 獅子座本月在感情上波折重重喔!
- 4 招找回熱戀時的床上激情,讓每一次都像第一次,持續有新鮮感的小方法~
- 不化底妝也要畫眼線!眼妝次序要知道~畫出最自然動人的大眼妝!
- 4年創收2000億韓幣~金秀賢10月23日正式入伍!老闆們光想都傷心!
- 《復仇者聯盟 3:無限之戰》最新預告釋出!將有英雄要在本集戰死?62 個角色將一次亮相~
- 巴西模特兒Lais Ribeiro成為今年幸運兒!將穿上價值200萬美元的 Victoria’s Secret「 Fantasy Bra 」,成為閃亮的黑天使~
- 這些關於月經的迷思~你都一定有google過!有男友時總是很怕遲來啊~
- 你愛的人他不再愛你了!失戀很傷很痛但生活還是要繼續!3個失戀治療大法,sis振作喔~
- 想要BLING BLING大眼只畫眼線是不夠的!超夯「#変則ライン」令雙眼立即放大~
- 最自私自利TOP 3,王者風範的獅子會上榜一點都不意外呀~所有東西都要聽我的!
- 冬天肌膚又乾又癢?秋冬身體護膚3個小貼士,讓SIS們輕鬆擁有香香的幼嫩肌
- 光用公主桌布還不夠~讓公主們來保護你的電話吧!迪士尼公主手指扣GET!
- 女生就是愛穿小白鞋!2018仍然穩住潮流,輕便簡約就連Krystal都愛!
- 大門未知子當然不負眾望!DoctorX第5季初回開紅盤,成為今年民放日戲初回最高收視!
- 裸睡能讓皮膚變好!太多你不知道的好處,今晚就開始試試裸睡吧!
