為了熱愛收藏公仔的屋主,藝飛室內設計特別設計小型公仔展示廳,並將黑、白、灰作為家中主色調,襯托出公仔的風采,讓公仔成為視覺主角。
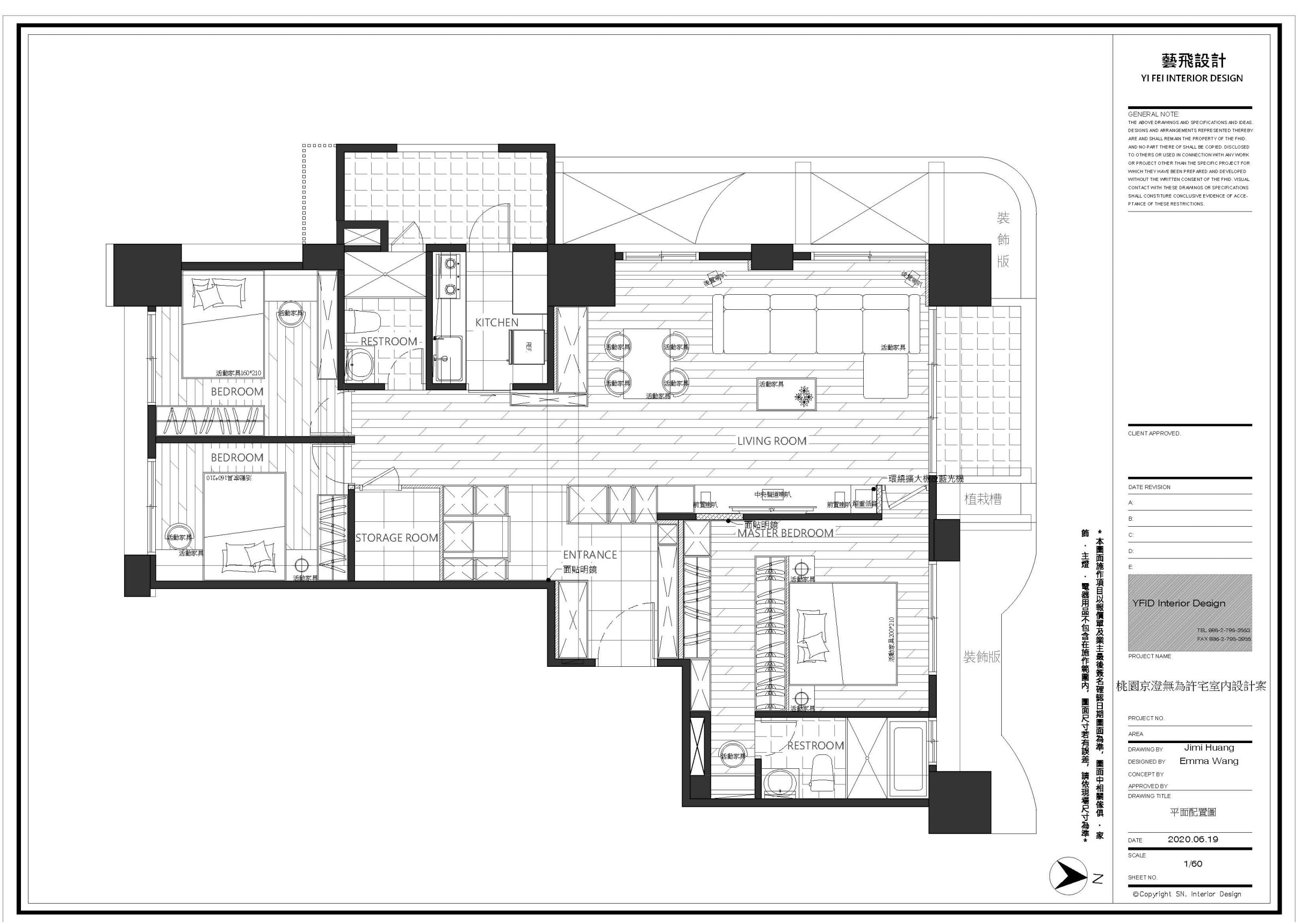
此作品位於桃園市, 32坪的空間內有三房二廳二衛,另外還有廚房、儲藏室,屋主是一名公仔模型收藏家。空間規劃上,入口玄關處原本僅有一個鞋櫃,為了加大鞋櫃,將一旁主臥房牆面向內推,也使玄關空間更為寬敞,降低進入家門時的壓迫感。希望讓屋主進入家中便能看見心愛的公仔收藏品,設計上,將展示櫃置於玄關旁。有別於常見的獨立櫥櫃,家中擺放了多個展示櫃,並將其作為隔間,圍繞在空間的四周,形成展示廳。
展示櫃由地面向天花板伸展,鋪設強烈的視覺張力。櫃身由玻璃與鐵件組成,簡約的設計讓架上公仔在四面的暖光照映之下,顯得格外亮眼。考量公仔有大有小,特別讓層架有自由移動的彈性,進而讓屋主能盡情收藏各種尺寸的公仔模型。由於先前未曾在住宅中置入大型的展示櫃,因此在規劃展示區域的過程中,與屋主一同討論,實現了此突破性嘗試。
感官昇華
客廳內,大面白底帶灰的大理石牆,剔透光亮,定調出空間內的高雅質感。而電視下方黑色大理石面,布滿灰白縱橫紋理,為空間注入一絲尊貴與神祕。銀灰色的L型沙發,完美地平衡了空間內的輕與重,而一旁的炭灰色落地窗簾,使空間更為靜謐。客廳搭載絕佳的視聽設備,當簾幕闔上,燈光轉亮為暗,搖身一變化身為私人影院,將空間內的感官體驗由放鬆昇華為享受。餐廳內,採用線條簡單、造型俐落的吊燈,增添了現代氣息,灰褐色的石材餐桌,富有天然、細膩的紋理,呼應了空間內質感知性、圓潤的木質地坪。
感受擴展
進入私領域,主臥房內延續了公領域的沉穩、低調氛圍,床頭牆面為內斂的霧白色,深淺有別的灰色紋理蔓延其中,勾勒出空間內的視覺層次,同時也營造了令人無法忽視的寧靜感。床頭的玫瑰金壁燈,柔化了大量冷調色系帶來的剛硬與距離感,成為空間內最輕柔、溫暖、迷人的點綴。雙人床鋪在黑、灰色的搭配下,完整了臥室整體的和諧感受。更衣室為窄長空間,規劃上,將開放式衣櫃設置於走道兩側,並且於走道兩端置貼明鏡,除了營造視覺的通透性之外,更強化了空間內的機能性。
此作品中,運用大量木質與鐵件,透過木材的醇厚與溫性,調和鐵件的冰冷與銳利。除此之外,為了化解梁柱低矮的問題,在家中置貼多面明鏡,讓視覺得以延展,空間更顯遼闊。藉由一個個精心設計,藝飛室內設計為居家注入美學,化日常為不凡,打造獨一無二的住宅空間。
Data
作品:藏·新,藏·心
區域:桃園市桃園區
坪數:32坪
空間:3房2廳2衛
建材:木地板、大理石、系統櫃、鐵件、鏡面
藝飛室內設計
電話:02-2713-5931
地址:台北市松山區復興北路231巷26號
Email:company@yifdesign.com
更多精采內容:www.idshow.com.tw/idtalk
