promotionBanner image
喵喵的心裡話
現在就是情緒真正出現的時候
點我下載

粗獷中暗藏細膩柔和,以雙圓弧形天花擘劃空間的力與美

id SHOW好宅秀

33更新時間: 2023-04-07 09:18

在光影交織之下,材質在空間中恣意湧動,讓放大的空間維度,勾勒出現代人文的視覺輪廓。安筑設計團隊以專業設計思維出發,在需求的呼應下,透過設計巧手堆砌出居家的粗獷大氣風範,又在其中注入細膩柔和的放鬆氣息,引領出清新脫俗的居家生活視野。

安筑設計;弧型設計;室內設計;居家空間

以需求角度出發,塑造獨特空間質感

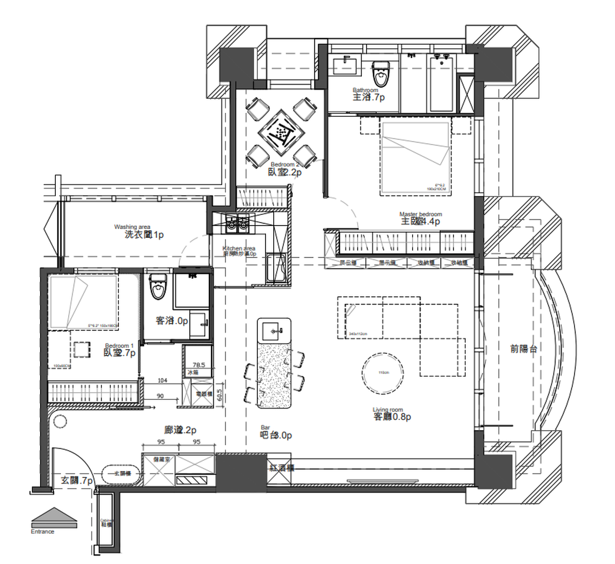
本案位於新北市,在36坪的新成屋中,共有3房2廳2衛的空間格局,在設計上以屋主的生活需求為考量,滿足日常所需的空間機能,同時透過巧手打造出天花板雙圓弧形設計,拉高天花板之餘,也為公領域的質感推升到全新層次。接著從玄關到客廳,搭配餐廳中介的格柵設計,透過崁入線燈設計,形塑出獨特的空間表情,也讓居家的延伸性在設計語彙中襯托出來。

安筑設計;弧型設計;室內設計;居家空間

應用設計手法,串聯並延伸空間場域

從玄關進門可以發現以特殊漆打造的壁面,其天花板與客廳的天花板設計產生弧型語彙的呼應,同時藉以地板材質分野場域,一旁的隱藏式拉門將臥房的位置巧妙與空間融為一體,接著透過灰鏡設計讓空間產生低調洗鍊的穿透性。設計團隊以開放式設計連袂公領域場域,將原本的廚房熱炒區格局改小,打造出與客廳相連的中島餐廳區,讓生活的歡笑聲可以從這裡傳遞到各個場域,同時其以格柵設計從壁面、中島櫃體,延伸到上方天花板,在開放式設計下讓空間機能涇渭分明。

安筑設計;弧型設計;室內設計;居家空間
安筑設計;弧型設計;室內設計;居家空間

突顯空間的風采神韻,展現大膽前衛的居家品味

在客廳的部分,電視牆以大理石的原石打造而成,其中以隱藏式設計將酒櫃置入其中,在視覺上注入潑墨意象,同時隱約可以看見兩隻牛在展現生命活力,巧妙地與天花板的內弧與外弧設計,突顯出空間的力與美。然而,客廳後方的收納空間,以懸空結構設計而成,是具有質感的鍍鈦展示櫃,搭配線燈設計渲染出空間的不凡格調。整體空間以素雅的灰色、米色為主色調,並融合一旁的黃色廊道,以藍寶堅尼壁紙鋪展空間,結合沙發的寶藍色質感,展現出屋主大膽前衛的獨特品味。

安筑設計;弧型設計;室內設計;居家空間
安筑設計;弧型設計;室內設計;居家空間

以材質堆疊空間,讓居家充滿浪漫氣息

整體空間,透過縝密完善的設計規劃,搭配多元材質如特殊漆、大理石、大板磚、灰鏡、格柵、壁紙、實木等等元素,結合流暢動線、豐沛採光的條件,並藉由拉高的天花板弧型設計,同時在智能燈光的多元色彩下,讓每一天都是風情萬種的浪漫生活情境,不管是想要一個人放鬆來杯紅酒,還是享受全家人的歡樂時刻都沒問題。

安筑設計;弧型設計;室內設計;居家空間
安筑設計;弧型設計;室內設計;居家空間
安筑設計;弧型設計;室內設計;居家空間
安筑設計;弧型設計;室內設計;居家空間

Data

地點:新北市

坪數:36坪

空間:新成屋

完成時間:2022年

建材:壁紙、實木、格柵、灰鏡、黑鏡、大理石、大板磚、特殊漆、烤漆玻璃、長虹玻璃、海島型木地板

安筑設計

台北市信義區忠孝東路五段71巷40號2樓

02-2765-6219

www.anju-design.com


更多精采內容:www.idshow.com.tw/idtalk


相關搜尋

Side AD