▲原始平面圖
▲修改後平面圖
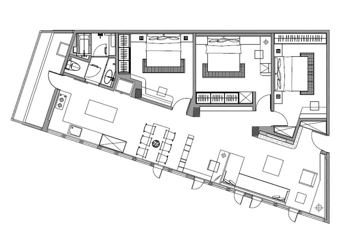
這一間老宅的原始格局存在太多根柱子,導致整個動線都不順暢,也增添了空間的零碎感,同時柱與樑的走向並非有系統的與牆面垂直或水平,造成視覺效果的不平衡。另一方面,即使從風水學的角度來看,也犯了許多禁忌,因此新任屋主希望能夠透過設計師的規劃及調整,讓住家呈現不一樣的面貌。
設計師在接手本案後,考慮到入口處有一根直立的主樑柱,雖樑柱為圓柱狀,但於風水上來說是大煞,透過格局變更將客廳位置重新調整,使柱體與電視櫃設計結合,除了巧妙隱藏柱體厚度之外,雙面電視櫃也替後方臥室增加隱私性及強化公共空間的收納機能,可說以柱體為中心,將空間左右清楚分隔。
其次因此案格局為梯形,柱與樑的走向也非有系統的與牆面垂直或水平,為了解決格局不方正的配置,設計上以中軸線為各空間的聯絡通道,再將空間屬性一分為二:公共空間及私領域,形成明廳暗房的概念,客廳的地位也因而被突顯,最終讓住家成為屋主心目中理想的樣子。
▲Before
▲After
▲After
▲After
圖片/岱禾設計
即刻加入《"id SHOW"》Line@好友,快速掌握更多居家生活空間靈感及裝修知識等相關的精彩主題內容!
查看原始文章商品推薦
延伸閱讀
小編推薦
- 怎麼做才知道對方喜不喜歡妳?日本專家說:「男生靠59秒就能決定」女生可靠這2點清楚判斷!男生只有這種想法呀~
- 這些劇都不用等待!就在今個中秋假期一次看完 假期沒事做不如就來看劇看天光~
- 網友瘋傳的超準心測:從第一口先吃什麼,看出你的「隱藏怪癖」是?趕快來測測看吧!
- 你不敢講的內心話?「晚安=請勿打擾、我很忙=沒時間理你」,超有共鳴的當代字典!
- 超準心測!喜歡的茶飲和你的性格和愛情觀有密切關聯~五種熱門茶飲,你最喜歡哪一款呢?
- 單身真的超無能為力?5招教你「成功脫單」增加戀愛機率~在今年底之前告別單身啦!
- 消除妳的超肉ByeBye袖!小紅書熱議~一週快速瘦手臂運動,在家10分鐘內就可以完成!
- 南投夜生活【集集仲夏樂之夢】夜間生態導覽+腳踏車巡禮
- 告別月光族、變成小富婆?女生只要「戒買這8樣東西」,每個月竟然可以存到2倍的錢!
- 請好好地關愛他們!容易成為邊緣人的星座頭五位~對他們來說人類真的是最難應付的生物呢!
- 男友最難理解的穿搭!這3樣單品其實男生都不懂啦~下次就不要逼他們說好看了唷!
- 秋風起,為自己轉個髮色~內斂溫柔的栗子色系,與秋冬是絕配,染完就變氣質美人啦!
- 「我要代替月亮懲罰你!」童年回憶一定有這些動畫!一起來把它們都設定成手機桌布吧~
- 好想把他帶回家!KAKAO FRIENDS推出新系列貼紙,RYAN換了妹妹頭短髮,太可愛了~
- 為什麼她放心讓男友和異性外出?因為她很懂得怎樣管教男友~快看看12星座中誰最會管!
- 別以為看不見就沒有!穿胸罩後肉肉都突出來了怎麼辦?用這個簡單方法一天一回減走後背肉吧~
- 2019南投集集線美食【水里肉圓】隱藏版.食尚玩家推薦
- 快筆記!近期最受矚目台北活動「2019白晝之夜」即將登場!
- 2019南投【集集車站一日遊景點】美食.雨天備案
- 肯德基爺爺變帥了!KFC即將推出《我愛你,肯德基爺爺!》模擬戀愛遊戲,神秘結局等你揭開~